El pasado 17 de junio tuvo lugar en el Museo de Guadalajara una conferencia impartida por D. Ángel Rodríguez Rebollo sobre el pintor Rómulo Cincinnato y su labor en España. Muchos de vosotros nos dijistéis que era una pena no haber podido asistir a dicha conferencia, por lo que nos hemos puesto en contacto con el autor y nos ha hecho este pequeño resumen de su ponencia, la cual también formará parte del libro sobre la decoración al fresco del Palacio del Infantado que está preparando.
Rómulo Cincinnato, nació en Florencia en fecha incierta en torno a 1540. Aunque las fuentes antiguas lo sitúan como discípulo de Francesco Salviati, lo cierto es que nada hay que certifique tal aprendizaje, siendo más plausible que éste se realizase en el obrador de Taddeo y Federico Zuccaro. Así se desprende de las concomitancias existentes entre las obras de éstos –no sólo frescos sino también sus dibujos– y la principal obra al fresco de nuestro artista, la decoración al fresco del Palacio de los Duques del Infantado en Guadalajara.
En 1567, año en el que es llamado a España, ya se encontraba trabajando para la curia pontificia en Roma. Hasta nuestro país llegará junto a Patricio Cajés de la mano del embajador español en Roma don Luis de Requesens para incorporarse al grupo de artistas que estaban al servicio de Felipe II. Para el rey prudente se encargará de decorar durante sus primeros años en la Corte buena parte de los reales sitios. En efecto, bajo la dirección de Gaspar Becerra nuestro artista empleará sus pinceles en primer lugar en algunas decoraciones murales de los palacios de El Pardo y Valsaín. A la muerte de Becerra en 1568 pasará a trabajar en la principal residencia de la monarquía hispánica, el Alcázar de Madrid, realizando allí un conjunto de frescos, ahora bajo la dirección de Giovanni Battista Castello il Bergamasco, que comprenderán buena parte de las habitaciones del rey y del príncipe. Un año más tarde también fallecerá Castello, quedando temporalmente Cincinnato y Cajés al frente de las decoraciones de los palacios reales. En todos ellos desarrollará un variado imaginario de grutescos y de arquitecturas fingidas que les proporcionarán un notable éxito y que llevarán a Felipe II a encargarle, entre 1570-1571, la ornamentación al fresco de la Sacristía de prestado del Monasterio de El Escorial. Éste dato es de suma importancia y revela hasta qué punto se apreciaba al artista, sobre todo si tenemos en cuenta que por esas fechas la mole escurialense aún estaba en obras y que sus grandes decoraciones murales no se llevarían a cabo hasta una década más tarde.
Aunque se encuentra al servicio del rey, nuestro artista conseguirá permisos de éste para trabajar en distintas obras de la iglesia y la nobleza. Así, en 1572 se traslada a Cuenca para realizar los cuadros del retablo mayor de la iglesia de los jesuitas. Allí realizará tres importantes pinturas para el retablo mayor, la Circuncisión, San Pedro y San Pablo. Todas ellas se conservan hoy en la Real Academia de Bellas Artes de San Fernando y expresan a la perfección su formación romana y sobre todo el gusto por las grandes arquitecturas de los fondos de sus pinturas, deudoras de las realizadas por Rafael en los palacios vaticanos.
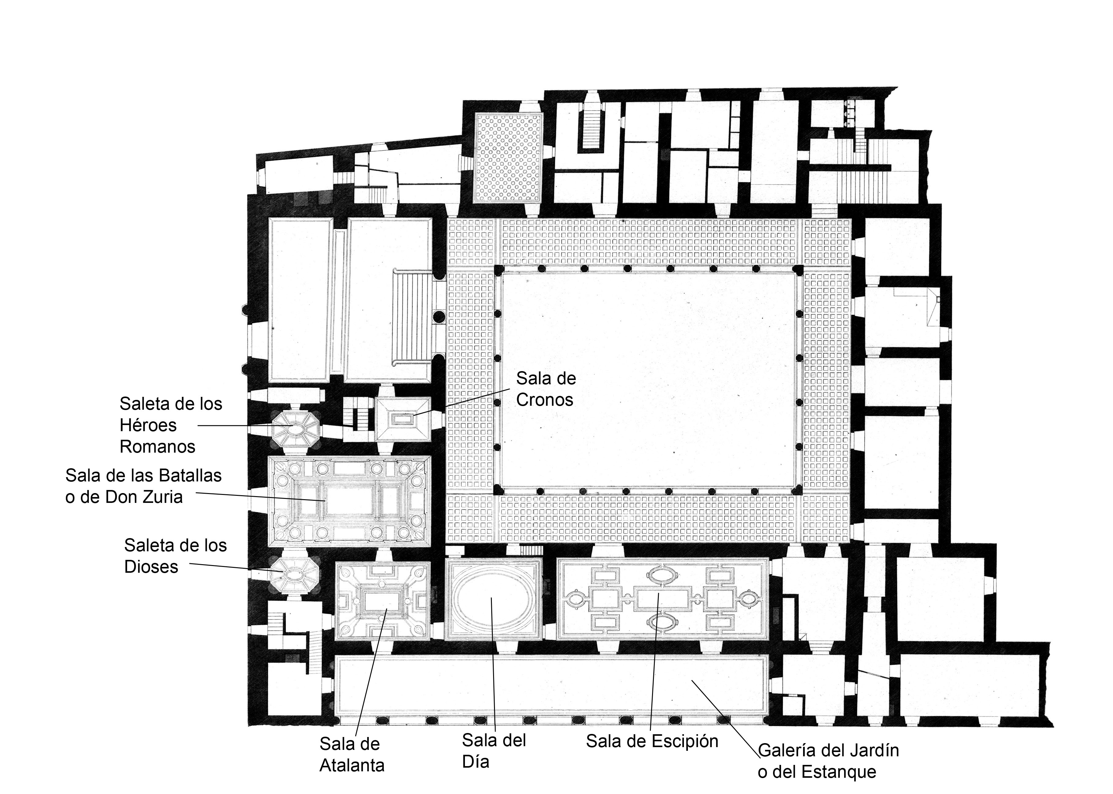
Por esos mismos años entabla contacto con el V Duque del Infantado, quien desde 1570 se encontraba reformando por completo su palacio de Guadalajara para adecuarlo a los gustos del renacimiento. Aunque la documentación demuestra que residió en Guadalajara entre 1578 y 1580, lo cierto es que el importante volumen de sus frescos –contrariamente a lo que se ha pensado, éstos se extendían no sólo por sus salas bajas sino también por el piso principal del edificio – obliga a pensar que el contacto entre el Duque y el pintor debió existir desde al menos 1572-1573. Así se desprende de varios factores y del hecho de que ya entre 1574-1575 se llevaban a cabo las labores de estuco de las bóvedas previas a la posterior decoración al fresco. Sea como fuere, allí plasmará un importantísimo imaginario en torno a la descendencia mítica de la casa del Infantado y a su doble ideario de caballeros-militares, pero a la vez eruditos y humanistas. Éstos frescos son además completamente excepcionales no sólo por su calidad sino por el hecho de ser los únicos de carácter histórico y mitológico del siglo XVI en España que, junto a los del Palacio del Viso del Marqués y a unos pocos fragmentos del palacio de El Pardo, han llegado hasta nuestros días.
Uno de los episodios más conocidos de su biografía es el de la reelaboración del famoso cuadro de El Greco, El Martirio de San Mauricio y la legión tebana, que el cretense había entregado para la decoración de El Escorial en 1582. La pintura, magnífica aunque poco apta para los postulados de decoro impuestos por Felipe II, sería sustituida por otro lienzo en 1583 encargado a nuestro artista. A partir de entonces y hasta su retiro en Guadalajara en 1591, Cincinnato trabajará en las decoraciones del monasterio escurialense, pintando algunos de los frescos del coro de la Basílica y dos grandes altares relicario en el Claustro de los Evangelistas.
Será a partir de 1591 cuando lleve a cabo algunas de sus obras menos conocidas, algunas de ellas afortunadamente conservadas en el Museo Provincial de Guadalajara. Todas han de ponerse en relación con el monasterio jerónimo de San Bartolomé de Lupiana, casa madre de la orden y desde donde saldrían los primeros monjes con destino a El Escorial. Pues bien, para dicho lugar y contando con la colaboración de varios ayudantes, realizará toda una serie de óleos en los que, seguramente por petición del prior del monasterio, copiará y versionará buena parte de las pinturas que Juan Fernández Navarrete el Mudo había realizado para Felipe II pocos años antes. Junto a ellos pintará dos bellísimos cuadros en los que reelaborará algunas de sus decoraciones murales en el monasterio filipino –nos referimos al bellísimo San Jerónimo con el ángel trompetero – y donde demostrará, ya al final de su vida, su admiración por la obra de Tiziano. Así se desprende de su lienzo Los santos Juanes, pintura que reproduce un original perdido de Navarrete en la que la figura de San Juan Bautista no es sino la reproducción invertida del famoso cuadro de Tiziano pintado para el rey en 1574 y que aún se guarda en El Escorial.
De su vida personal se sabe que casó en 1578 y que tuvo ocho hijos de los que le sobrevivieron cuatro. Dos de ellos se dedicaron también a la pintura, alcanzando el mayor de ellos, Diego de Rómulo Cincinnato, gran fama hasta el punto de viajar junto al III Duque de Alcalá a Roma, donde entraría a formar parte de la Academia de San Lucas. Rómulo Cincinnato fallecerá en Madrid en 1597 después de otorgar testamento.
Ángel Rodriguez Rebollo







